Die Brücke_2015.12.01_Räume der Flucht und des Wartens
01.12.2015
weiterlesen …Das beschauliche Ortszentrum der Marktgemeinde Weitensfeld im Gurktal war am Sonntag, dem 30. August 2015, Treffpunkt für eine außergewöhnliche Veranstaltung: Der Gasthof Bärenwirt lud zur ersten Vernissage der Wanderausstellung „Fluchtraum Österreich“. Seine neuen Gäste, junge Asylwerbende aus Syrien, bekamen Besuch von Wiener Studierenden und Kärntner Einheimischen. Gemeinsam wurde die Ausstellung eröffnet, die „eine neue Sichtweise auf Zustände der Flucht und des Wartens, der reglementierten Raumnutzung von Asylwerbenden, sowie der Rolle, welche Architektur und gebauter politischer Raum in diesem Zusammenhang spielen, schaffen will“.
Die Gasthausschank und der Garten füllten sich mit Interessierten, die den Begrüßungsreden von Anny Knapp der Asylkoordination Österreich, den KuratorInnen der Wanderausstellung Nina Valerie Kolowratnik und Johannes Pointl sowie Elisabeth Steiner als Gastgeberin und Betreiberin des „offenen“ Bärenwirtes folgten und sich über die syrische Musikeinlage der neuen Gäste erfreuten. Danach konnten sich die BesucherInnen zu den Gasthaustischen setzen, auf denen die Ausstellungsplakate angebracht wurden. Die Studierenden stellten ihre raumanalytischen Kartographien und kritisch-argumentativen Essays persönlich vor, die sich mit unterschiedlichen Maßstäben der Flucht in Österreich beschäftigen und noch bis mindestens September zu sehen sein werden.
Damit kehrt die Ausstellung an die Orte und die Umgebung der Feldrecherche zurück, die den Studierenden vorab Einblicke bot und in ihre Arbeiten einfloss. In Kärnten hatten sie nicht nur das ehemalige „Asylwerberheim“ auf der Saualm besucht, das wegen seiner menschenunwürdigen Unterbringung 2012 geschlossen wurde, sondern eben auch den Bärenwirt. Er wurde als offenes Haus und Pendent zur Saualm erlebt und daher als erste Destination der Ausstellung gewählt. Zur Ausstellungsidee gehört es, die Begegnungen zwischen Asylwerbenden und Einheimischen zu fördern und Impulse vor Ort zu setzen.
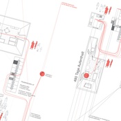
Das Projekt Fluchtraum Österreich wurde im Herbst 2014 von den jungen ArchitektInnen Nina Valerie Kolowratnik und Johannes Pointl initiiert und die Inhalte dieser Ausstellung im Rahmen einer Lehrveranstaltung an der Technischen Universität Wien, Institut für Architektur und Entwerfen, Abteilung Gebäudelehre und Entwerfen, erarbeitet. Dabei werden Visualisierungstechniken als neue Werkzeuge der ArchitektInnen im Kontext Asyl vorgestellt, um zeitbasierte, rechtliche, gesellschaftliche und wirtschaftliche Zusammenhänge darzustellen, welche Räume der Flucht konstituieren. „Fluchtraum Österreich“ ist soeben mit dem ersten Preis beim Wettbewerb „Planetary Urbanism – Critique of the Present in the Medium of Information Design“ ausgezeichnet worden.
(Verfasst von Gordana Brandner-Gruber für das Architektur Haus Kärnten)
Fotos: Gerhard Maurer, Nina Valerie Kolowratnik & Roland Gruber